Spenden statt Geburtstagsgeschenke
23. Juli 2022Bericht Schirmherrschaft – Nice View Trust Foundation: Dr. Auma Obama
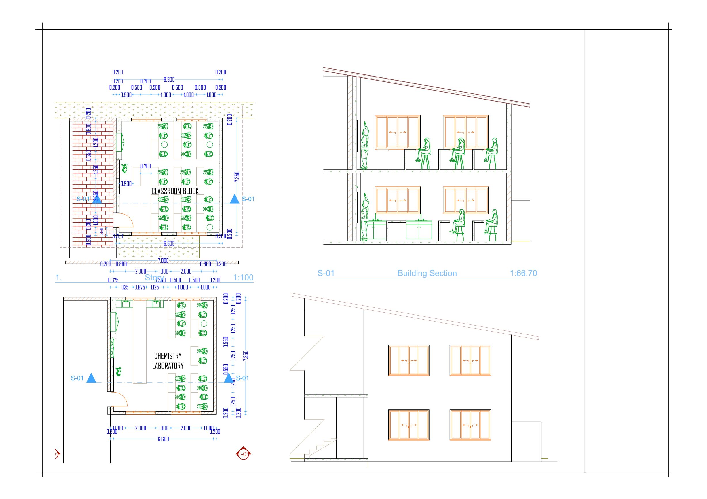
8. August 2022Das kenianische Schulsystem ändert sich zum 1.1.2023 von 8-4 auf 6-3-3. Das bedeutet, dass die Kinder nur noch bis zur 6. Klasse in der Primary School sind.
Klasse sieben, acht und neun sind künftig in der sogenannten Junior Secondary School.
Das bringt für die Nice View Gratitude Academy eine große Herausforderung mit sich, da wir die Schule um mindestens zwei Klassenzimmer erweitern müssen.
Ab der 7. Klasse wird Chemie und Physik unterrichtet und es wird ein speziell eingerichteter Chemie/Physik Raum benötigt.
Der Anbau soll zweistöckig in der Größe 7x8m werden und dieses Bauprojekt wird mit ca. 46.000,- € an reinen Baukosten kalkuliert. (Kostenaufstellung im Anhang)
Die Innenausstattung beläuft sich auf ca. 10.900,-€. (genauere Beschreibung, siehe Anlage)
Nice View würde am liebsten gleich morgen mit dem Bau starten und dieses Projekt umsetzen. Unser Ziel ist es, so lange wie möglich, die Kinder auf dem kenianischen Bildungsweg direkt in Nice View zu begleiten. In Nice View kann die Lehrerschaft täglich motiviert und gelenkt werden, wovon sehr viele Kinder auf ihrem Weg in die Eigenständigkeit profitieren.
Derzeit kämpfen wir noch mit der unnormalen hohen allgemeinen Preissteigerung in Kenia und PSW e.V. hat das mtl. Budget erhöht, um die Nice View Projekte am Leben zu erhalten. Somit ist es für uns als Verein sehr schwierig geworden, diese zusätzliche finanzielle Herausforderung zu meistern.
Wenn Sie dieses wichtige Projekt unterstützen möchten erreicht uns Ihre / Deine Hilfe mit dem Verwendungszweck: Schulerweiterung Nice View.
Spendenkonto: DE13 7305 0000 0430 8346 06 Swift (BIC) Code: BYLADEM1NUL Sparkasse Neu-Ulm-Illertissen
Kontoinhaber: Projekt Schwarz-Weiß e.V.
Vorab von Herzen Danke – Asante Sana – .
Bei Rückfragen dürfen Sie sich / darfst Du Dich jederzeit an uns wenden und wir freuen uns über Ihre /Deine Kontaktaufnahme.
Ihr / Euer
Projekt Schwarz-Weiß Team



